Общественные обсуждения по проектам решений об утверждении схем расположения земельных участков под многоквартирными домами
Общественные обсуждения

Комиссия по землепользованию и застройке городского округа "Город Архангельск" извещает о начале проведения общественных обсуждений схемы расположения земельных участков, образуемых в результате раздела земельного участка с кадастровым номером 29:22:060417:53

Общественные обсуждения проводятся с "3" ноября 2022 года по "16" ноября 2022 года.

Текст оповещения

Форма подачи предложений и (или) замечания по проекту

Схема расположения земельных участков

Заключение

Комиссия по землепользованию и застройке городского округа "Город Архангельск" извещает о начале проведения общественных обсуждений схем расположения земельных участков, расположенных:

в Маймаксанском территориальном округе г. Архангельска по ул. Юнг Военно-Морского Флота, 7, корп. 1;

в Соломбальском территориальном округе г. Архангельска по ул. Физкультурников, 42, корп. 2;

в Соломбальском территориальном округе г. Архангельска по ул. Физкультурников, 35;

в Соломбальском территориальном округе г. Архангельска по ул. Беломорской флотилии, 2;

в Соломбальском территориальном округе г. Архангельска по ул. Баумана, 12, корп. 4;

в территориальном округе Майская горка г. Архангельска по ул. Лермонтова, 21;

в территориальном округе Майская горка г. Архангельска по ул. Лермонтова, 27, корп. 1;

в территориальном округе Варавино-Фактория г. Архангельска по ул. Революции, 23/проспекту Ленинградскому, 325;

в Исакогорском территориальном округе г. Архангельска по ул. Таёжной, 15;

в Исакогорском территориальном округе г. Архангельска по ул. Пограничной, 6;

в Исакогорском территориальном округе г. Архангельска по ул. Речников, 37.

Общественные обсуждения проводятся с "23" декабря 2022 года по "11" января 2023 года.

Текст оповещения

Форма подачи предложений и (или) замечания по проекту

Схема расположения земельного участка по ул. Юнг Военно-Морского Флота, 7, корп. 1

Схема расположения земельного участка по ул. Физкультурников, 42, корп. 2

Схема расположения земельного участка по ул. Физкультурников, 35

Схема расположения земельного участка по ул. Беломорской флотилии, 2

Схема расположения земельного участка по ул. Баумана, 12, корп. 4

Схема расположения земельного участка по ул. Лермонтова, 21

Схема расположения земельного участка по ул. Лермонтова, 27, корп. 1

Схема расположения земельного участка по ул. Революции, 23/проспекту Ленинградскому, 325

Схема расположения земельного участка по ул. Таёжной, 15

Схема расположения земельного участка по ул. Пограничной, 6

Схема расположения земельного участка по ул. Речников, 37

Заключение

Комиссия по землепользованию и застройке городского округа "Город Архангельск" извещает о начале проведения общественных обсуждений схем расположения земельных участков, расположенных:

в Исакогорском территориальном округе г. Архангельска по ул. Вычегодской, 3;

в Исакогорском территориальном округе г. Архангельска по ул. Пирсовой, 25;

в Северном территориальном округе г. Архангельска по ул. Партизанской, 38;

в Северном территориальном округе г. Архангельска по ул. Ударников, 21.

Общественные обсуждения проводятся с "30" декабря 2022 года по "25" января 2023 года

Текст оповещения

Форма подачи предложений и (или) замечания по проекту

Схема расположения земельного участка по ул. Вычегодской, 3

Схема расположения земельного участка по ул. Пирсовой, 25

Схема расположения земельного участка по ул. Партизанской, 38

Схема расположения земельного участка по ул. Ударников, 21

Заключение

Комиссия по землепользованию и застройке городского округа "Город Архангельск" извещает о начале проведения общественных обсуждений схем расположения земельных участков, расположенных:

в Северном территориальном округе г. Архангельска по ул. Красных маршалов, 18;

в Соломбальском территориальном округе г. Архангельска по ул. Мостовой, 22;

в Цигломенском территориальном округе г. Архангельска по пер. Одиннадцатому, 6;

в Соломбальском территориальном округе г. Архангельска по ул. Физкультурников, 41;

в Соломбальском территориальном округе г. Архангельска по пер. Широкому, 7;

в Маймаксанском территориальном округе г. Архангельска по ул. Мудьюгской, 41, корп. 1;

в Маймаксанском территориальном округе г. Архангельска по ул. Лодемской, 47;

в Исакогорском территориальном округе г. Архангельска по ул. Левобережной, 11;

в Исакогорском территориальном округе г. Архангельска по ул. Парковой, 5;

в территориальном округе Майская горка г. Архангельска по ул. Сплавной, 3;

в территориальном округе Варавино-Фактория г. Архангельска
по ул. Холмогорской, 35, корп. 6;

в территориальном округе Майская горка г. Архангельска по ул. Лермонтова, 21.

Текст оповещения

Форма подачи предложений и (или) замечания по проекту

Схема расположения земельного участка по ул. Красных маршалов, 18;

Схема расположения земельного участка по ул. Мостовой, 22;

Схема расположения земельного участка по пер. Одиннадцатому, 6;

Схема расположения земельного участка по ул. Физкультурников, 41;

Схема расположения земельного участка по пер. Широкому, 7;

Схема расположения земельного участка по ул. Мудьюгской, 41, корп. 1;

Схема расположения земельного участка по ул. Лодемской, 47;

Схема расположения земельного участка по ул. Левобережной, 11;

Схема расположения земельного участка по ул. Парковой, 5;

Схема расположения земельного участка по ул. Сплавной, 3;

Схема расположения земельного участка по ул. Холмогорской, 35, корп. 6;

Схема расположения земельного участка по ул. Лермонтова, 21

Заключение

Комиссия по землепользованию и застройке городского округа "Город Архангельск" извещает о начале проведения общественных обсуждений схем расположения земельных участков, расположенных:

Схема расположения земельного участка в Октябрьском территориальном округе г. Архангельска по просп. Ломоносова, 172, корп. 1;

Схема расположения земельного участка в Исакогорском территориальном округе г. Архангельска по ул. Доковской, 6;

Схема расположения земельного участка в территориальном округе Варавино-Фактория г. Архангельска по ул. Октябрьской, 30.

Заключение

Текст оповещения

Форма подачи предложений и (или) замечания по проекту

Комиссия по землепользованию и застройке городского округа "Город Архангельск" извещает о начале проведения общественных обсуждений схемы расположения земельного участка, расположенного:

Схема расположения земельного участка в территориальном округе Варавино-Фактория по ул. Почтовый тракт, 28, корп. 1.

Текст оповещения

Форма подачи предложений и (или) замечаний по проекту

Заключение

Комиссия по землепользованию и застройке городского округа "Город Архангельск" извещает о начале проведения общественных обсуждений схемы расположения земельного участка, расположенного:

Схема расположения земельного участка в Северном территориальном округе г. Архангельска по ул. Партизанской, 40.

Текст оповещения

Форма подачи предложений и (или) замечаний по проекту

Заключение

Комиссия по землепользованию и застройке городского округа "Город Архангельск" извещает о начале проведения общественных обсуждений схем расположения земельных участков, расположенных:

в территориальном округе Варавино-Фактория г. Архангельска по ул. Холмогорской, 35, корп. 1;

в Цигломенском территориальном округе  г. Архангельска по ул. Зеленец, 5;

в Соломбальском территориальном округе  г. Архангельска по ул. Гвардейской, 3;

в Соломбальском территориальном округе  г. Архангельска по ул. Гвардейской, 11;

в Маймаксанском территориальном округе  г. Архангельска по ул. Юнг Военно-Морского Флота, 20;

в Маймаксанском территориальном округе  г. Архангельска по ул. Юнг Военно-Морского Флота, 75;

в Ломоносовском территориальном округе  г. Архангельска по ул. Выучейского, 35;

в территориальном округе  Майская горкаг. Архангельска по проспекту Ленинградскому, 58;

в Маймаксанском территориальном округе  г. Архангельска по ул. Лодемской, 51, корп. 1;

в Исакогорском территориальном округе  г. Архангельска по ул. Тяговой, 14.

Общественные обсуждения проводятся с "5" мая 2023 года по "10" мая 2023 года.

Текст оповещения

Форма подачи предложений и (или) замечаний по проекту

Схема расположения земельного участка в территориальном округе Варавино-Фактория г. Архангельска по ул. Холмогорской, 35, корп. 1

Схема расположения земельного участка в Цигломенском территориальном округе  г. Архангельска по ул. Зеленец, 5

Схема расположения земельного участка в Соломбальском территориальном округе  г. Архангельска по ул. Гвардейской, 3

Схема расположения земельного участка в Соломбальском территориальном округе  г. Архангельска по ул. Гвардейской, 11

Схема расположения земельного участка в Маймаксанском территориальном округе  г. Архангельска по ул. Юнг Военно-Морского Флота, 20

Схема расположения земельного участка в Маймаксанском территориальном округе  г. Архангельска по ул. Юнг Военно-Морского Флота, 75

Схема расположения земельного участка в Ломоносовском территориальном округе  г. Архангельска по ул. Выучейского, 35

Схема расположения земельного участка в территориальном округе  Майская горкаг. Архангельска по проспекту Ленинградскому, 58

Схема расположения земельного участка в Маймаксанском территориальном округе  г. Архангельска по ул. Лодемской, 51, корп. 1

Схема расположения земельного участка в Исакогорском территориальном округе  г. Архангельска по ул. Тяговой, 14

Заключение

Общественные обсуждения проводятся с "26" мая 2023 года по "7" июня 2023 года.

Текст оповещения

Форма подачи предложений и (или) замечаний по проекту

Комиссия по землепользованию и застройке городского округа "Город Архангельск" извещает о начале проведения общественных обсуждений схем расположения земельных участков, расположенных:

Схема расположения земельного участка в Северном территориальном округе г. Архангельска по ул. Партизанской, 36;

Схема расположения земельного участка в территориальном округе Варавино-Фактория г. Архангельска по ул. Холмогорской, 35;

Схема расположения земельного участка в Соломбальском территориальном округе г. Архангельска по ул. Гвардейской, 5, корп. 1;

Схема расположения земельного участка в Октябрьском территориальном округе г. Архангельска по ул. Береговой, 1;

Схема расположения земельного участка в территориальном округе Варавино-Фактория г. Архангельска по проспекту Ленинградскому, 348;

Схема расположения земельного участка в территориальном округе Варавино-Фактория г. Архангельска по ул. Революции, 23/проспекту Ленинградскому, 325;

Схема расположения земельного участка в территориальном округе Варавино-Фактория г. Архангельска по ул. Революции, 27;

Схема расположения земельного участка в Маймаксанском территориальном округе г. Архангельска по ул. Емецкой, 11.

Заключение

Общественные обсуждения проводятся с "23" июня 2023 года по "5" июля 2023 года.

Текст оповещения

Форма

подачи предложений и (или) замечаний по проекту.

Комиссия по землепользованию и застройке городского округа "Город Архангельск" извещает о начале проведения общественных обсуждений схем расположения земельных участков, расположенных:

Схема расположения земельного участка в территориальном округе Варавино-Фактория г. Архангельска по ул. Почтовый тракт,30;

Схема расположения земельного участка в Исакогорском территориальном округе г. Архангельска по ул. Привокзальной, 17;

Схема расположения земельного участка в поселке Турдеевск городского округа "Город Архангельск" по ул. Турдеевской, 10;

Схема расположения земельного участка в Соломбальском территориальном округе г. Архангельска по ул. Гвардейской, 1, корп. 3;

Схема расположения земельного участка в Соломбальском территориальном округе г. Архангельска по ул. Баумана, 12, корп. 3;

Схема расположения земельного участка в Соломбальском территориальном округе г. Архангельска по ул. Красных партизан, 4, корп. 2;

Схема расположения земельного участка в Соломбальском территориальном округе г. Архангельска по наб. Георгия Седова, 20, корп. 1.

Заключение

Общественные обсуждения проводятся с "21" июля 2023 года по "2" августа 2023 года.

Текст оповещения

Форма подачи предложений и (или) замечаний по проекту.

Комиссия по землепользованию и застройке городского округа "Город Архангельск" извещает о начале проведения общественных обсуждений схем расположения земельных участков, расположенных:

Схема расположения земельного участка в Маймаксанском территориальном округе г. Архангельска по ул. Колхозной, 5;
Схема расположения земельного участка в в Соломбальском территориальном округе г. Архангельска по ул. Мореплавателей, 5;
Схема расположения земельного участка в Соломбальском территориальном округе г. Архангельска по ул. Терехина, 52;
Схема расположения земельного участка в Северном территориальном округе г. Архангельска по ул. Красных маршалов, 16;
Схема расположения земельного участка в Ломоносовском территориальном округе г. Архангельска по ул. Выучейского, 37;
Схема расположения земельного участка в Октябрьском территориальном округе г. Архангельска по ул. Свободы, 28;
Схема расположения земельного участка в Октябрьском территориальном округе г. Архангельска по ул. Свободы, 47, корпус 1;
Схема расположения земельного участка в Октябрьском территориальном округе г. Архангельска по проспекту Советских космонавтов, 112;
Схема расположения земельного участка в Октябрьском территориальном округе г. Архангельска по проспекту Советских космонавтов, 114;
Схема расположения земельного участка в поселке Лесная речка городского округа "Город Архангельск" по Лахтинскому шоссе, 130;
Схема расположения земельного участка в Исакогорском территориальном округе г. Архангельска по ул. Доковской, 3.

Заключение

Общественные обсуждения проводятся с "4" августа 2023 года по "16" августа 2023 года.

Текст оповещения

Форма подачи предложений и (или) замечаний по проекту.

Комиссия по землепользованию и застройке городского округа "Город Архангельск" извещает о начале проведения общественных обсуждений схем расположения земельных участков, расположенных:

Схема расположения земельного участка в территориальном округе Майская горка г. Архангельска по ул. Дружбы, 18;

Схема расположения земельного участка в Маймаксанском территориальном округе г. Архангельска по ул. Мирной, 28;

Схема расположения земельного участка в Маймаксанском территориальном округе г. Архангельска по ул. Победы, 18, корп. 2;

Схема расположения земельного участка в Маймаксанском территориальном округе г. Архангельска по ул. Победы, 18, корп. 3;

Схема расположения земельного участка в территориальном округе Варавино-Фактория г. Архангельска по проспекту Ленинградскому, 379;

Схема расположения земельного участка в Ломоносовском территориальном округе г. Архангельска по проспекту Новгородскому, 111;

Схема расположения земельного участка в Октябрьском территориальном округе г. Архангельска под многоквартирными домами № 59, № 61 и № 63 по проспекту Обводный канал.

Заключение

Комиссия по землепользованию и застройке городского округа "Город Архангельск" извещает о начале проведения общественных обсуждений схем расположения земельных участков, расположенных:

Схема расположения земельного участка в Соломбальском территориальном округе г. Архангельска по ул. Баумана, 23;

Схема расположения земельного участка в Исакогорском территориальном округе г. Архангельска по ул. Судоремонтников, 9;

Схема расположения земельного участка в Исакогорском территориальном округе г. Архангельска по ул. Судоремонтников, 10;

Схема расположения земельного участка в Исакогорском территориальном округе г. Архангельска по ул. Судоремонтников, 11;

Схема расположения земельного участка в Исакогорском территориальном округе г. Архангельска по ул. Доковской, 7;

Схема расположения земельного участка в Исакогорском территориальном округе г. Архангельска по ул. Доковской, 25;

Схема расположения земельного участка в Исакогорском территориальном округе г. Архангельска по ул. Железнодорожной, 3;

Схема расположения земельного участка в Исакогорском территориальном округе г. Архангельска по ул. Железнодорожной, 9;

Схема расположения земельного участка в Исакогорском территориальном округе г. Архангельска по ул. Лесозаводской, 12.

Общественные обсуждения проводятся с "1" сентября 2023 года по "13" сентября 2023 года.

Текст оповещения

Форма подачи предложений и (или) замечаний по проекту

Заключение

Комиссия по землепользованию и застройке городского округа "Город Архангельск" извещает о начале проведения общественных обсуждений схем расположения земельных участков, расположенных:

Схема расположения земельного участка в Исакогорском территориальном округе г. Архангельска по ул. Вычегодской, 21;

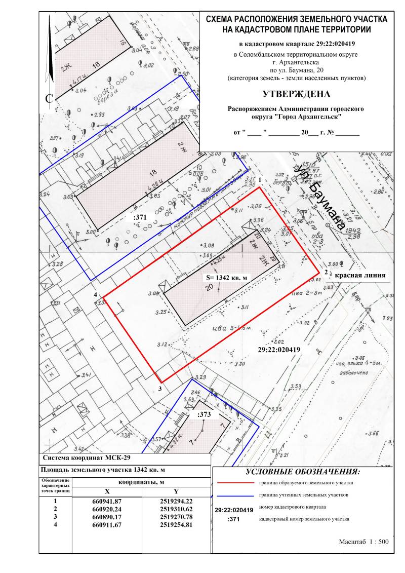
Схема расположения земельного участка в Соломбальском территориальном округе г. Архангельска по ул. Баумана, 12;

Схема расположения земельного участка в Соломбальском территориальном округе г. Архангельска по ул. Баумана, 18;

Схема расположения земельного участка в Соломбальском территориальном округе г. Архангельска по ул. Баумана, 25;

Схема расположения земельного участка в Соломбальском территориальном округе г. Архангельска по ул. Трамвайной, 4;

Схема расположения земельного участка в Соломбальском территориальном округе г. Архангельска по ул. Физкультурников, 33;

Схема расположения земельного участка в Маймаксанском территориальном округе г. Архангельска по ул. Родионова, 20;

Схема расположения земельного участка в Маймаксанском территориальном округе г. Архангельска по ул. Юнг Военно-Морского Флота, 68;

Схема расположения земельного участка в Маймаксанском территориальном округе г. Архангельска по ул. Юнг Военно-Морского Флота, 19.

Общественные обсуждения проводятся с "29" сентября 2023 года по "11" октября 2023 года.

Текст оповещения

Форма подачи предложений и (или) замечаний по проекту

Комиссия по землепользованию и застройке городского округа "Город Архангельск" извещает о начале проведения общественных обсуждений схем расположения земельных участков, расположенных:

в Соломбальском территориальном округе г. Архангельска по ул. Кучина А.С., д. 4;

в Соломбальском территориальном округе г. Архангельска по ул. Гвардейской, 12;

в Соломбальском территориальном округе г. Архангельска по ул. Физкультурников, 25;

в Маймаксанском территориальном округе г. Архангельска по ул. Победы, 18, корпус 1;

в Маймаксанском территориальном округе г. Архангельска по ул. Механизаторов, 27;

в Маймаксанском территориальном округе г. Архангельска по ул. Петрозаводской, 11;

в Маймаксанском территориальном округе г. Архангельска по ул. Фрунзе, 45;

в Маймаксанском территориальном округе г. Архангельска по ул. Котовского, 9;

в Цигломенском территориальном округе г. Архангельска по ул. Зеленец, 6;

в Исакогорском территориальном округе г. Архангельска по ул. Тяговой, 6.

Общественные обсуждения проводятся с "13" октября 2023 года по "25" октября 2023 года.

Заключение

Комиссия по землепользованию и застройке городского округа "Город Архангельск" извещает о начале проведения общественных обсуждений схем расположения земельных участков, расположенных:

в Соломбальском территориальном округе г. Архангельска по ул. Гвардейской, 1, корпус 4;

в Соломбальском территориальном округе г. Архангельска по ул. Гвардейской, 15;
в Соломбальском территориальном округе г. Архангельска по ул. Трамвайной, 6;
в Соломбальском территориальном округе г. Архангельска по ул. Гвардейской, 1;
в Маймаксанском территориальном округе г. Архангельска по ул. Герцена, 9;
в Маймаксанском территориальном округе г. Архангельска по ул. Юнг Военно-Морского Флота, 71;
в Маймаксанском территориальном округе г. Архангельска по ул. Юнг Военно-Морского Флота, 15, корпус 1;
в Маймаксанском территориальном округе г. Архангельска по ул. Юнг Военно-Морского Флота, 76;
в Маймаксанском территориальном округе г. Архангельска по ул. Юнг Военно-Морского Флота, 35, корпус 1;
в Маймаксанском территориальном округе г. Архангельска по ул. Мудьюгской, 26;
в Цигломенском территориальном округе г. Архангельска по ул. Мира, 2;
в Цигломенском территориальном округе г. Архангельска по ул. Ленинской, 10;
в Исакогорском территориальном округе г. Архангельска по ул. Локомотивной, 58;
в территориальном округе Варавино-Фактория г. Архангельска по ул. Революции, 29, коропус 1/ул. Почтовый тракт, 18;
в поселке Турдеевск городского округа "Город Архангельск" по ул. Таежной, 14, корпус 1
 

Общественные обсуждения проводятся с "10" ноября 2023 года по "22" ноября 2023 года.

Тест оповещения

Форма подачи предложений и (или) замечаний по проекту

Схема расположения земельного участка в Соломбальском территориальном округе г. Архангельска по ул. Гвардейской, 1, корпус 4;

Схема расположения земельного участка в Соломбальском территориальном округе г. Архангельска по ул. Гвардейской, 15;

Схема расположения земельного участка в Соломбальском территориальном округе г. Архангельска по ул. Трамвайной, 6;

Схема расположения земельного участка в Соломбальском территориальном округе г. Архангельска по ул. Гвардейской, 1;

Схема расположения земельного участка в Маймаксанском территориальном округе г. Архангельска по ул. Герцена, 9;

Схема расположения земельного участка в Маймаксанском территориальном округе г. Архангельска по ул. Юнг Военно-Морского Флота, 71;

Схема расположения земельного участка в Маймаксанском территориальном округе г. Архангельска по ул. Юнг Военно-Морского Флота, 15, корпус 1;

Схема расположения земельного участка в Маймаксанском территориальном округе г. Архангельска по ул. Юнг Военно-Морского Флота, 76;

Схема расположения земельного участка в Маймаксанском территориальном округе г. Архангельска по ул. Юнг Военно-Морского Флота, 35, корпус 1;

Схема расположения земельного участка в Маймаксанском территориальном округе г. Архангельска по ул. Мудьюгской, 26;

Схема расположения земельного участка в Цигломенском территориальном округе г. Архангельска по ул. Мира, 2;

Схема расположения земельного участка в Цигломенском территориальном округе г. Архангельска по ул. Ленинской, 10;

Схема расположения земельного участка в Исакогорском территориальном округе г. Архангельска по ул. Локомотивной, 58;

Схема расположения земельного участка в территориальном округе Варавино-Фактория г. Архангельска по ул. Революции, 29, корпус 1/ул. Почтовый тракт, 18;

Схема расположения земельного участка в поселке Турдеевск городского округа "Город Архангельск" по ул. Таежной, 14, корпус 1

Заключение

Комиссия по землепользованию и застройке городского округа "Город Архангельск" извещает о начале проведения общественных обсуждений

схемы расположения земельного участка, расположенного в городском округе "Город Архангельск" по ул. Доковской, 3.

Общественные обсуждения проводятся с "26" января 2024 года по "31" января 2024 года.

Текст оповещения

Форма подачи предложений и (или) замечаний по проекту

Схема расположения земельного участка в городском округе "Город Архангельск" по ул. Доковской, 3

Заключение

Комиссия по землепользованию и застройке городского округа "Город Архангельск" извещает о начале проведения общественных обсуждений схем расположения земельных участков, расположенных:

в территориальном округе Варавино-Фактория г. Архангельска по пер. 1-му Ленинградскому, 6;

в территориальном округе Варавино-Фактория г. Архангельска по проспекту Ленинградскому, 319;

в территориальном округе Варавино-Фактория г. Архангельска по проспекту Ленинградскому, 334;

в территориальном округе Варавино-Фактория г. Архангельска по проспекту Ленинградскому, 377;

в Маймаксанском территориальном округе г. Архангельска по ул. Лодемской, 49;

в Маймаксанском территориальном округе г. Архангельска по ул. Родионова, 18;

в Исакогорском территориальном округе г. Архангельска по ул. Привокзальной, 11;

в Исакогорском территориальном округе г. Архангельска по ул. Привокзальной, 12;

в Исакогорском территориальном округе г. Архангельска по ул. Речников, 33, корп. 2;

в территориальном округе Майская горка г. Архангельска по ул. Лермонтова, 29;

в территориальном округе Майская горка г. Архангельска по ул. Лермонтова, 29, корп. 1;

в Октябрьском территориальном округе г. Архангельска по ул. Свободы, 57, корп. 1;

в Октябрьском территориальном округе г. Архангельска по ул. Карла Маркса, 42;

в Октябрьском территориальном округе г. Архангельска по проспекту Ломоносова, 172, корп. 3.

Общественные обсуждения проводятся с 16 февраля 2024 года по 21 февраля 2024 года.

Текст оповещения

Форма подачи предложений и (или) замечаний по проекту

Схема расположения земельного участка в территориальном округе Варавино-Фактория г. Архангельска по пер. 1-му Ленинградскому, 6

Схема расположения земельного участка в территориальном округе Варавино-Фактория г. Архангельска по проспекту Ленинградскому, 319

Схема расположения земельного участка в территориальном округе Варавино-Фактория г. Архангельска по проспекту Ленинградскому, 334

Схема расположения земельного участка в территориальном округе Варавино-Фактория г. Архангельска по проспекту Ленинградскому, 377

Схема расположения земельного участка в Маймаксанском территориальном округе г. Архангельска по ул. Лодемской, 49

Схема расположения земельного участка в Маймаксанском территориальном округе г. Архангельска по ул. Родионова, 18

Схема расположения земельного участка в Исакогорском территориальном округе г. Архангельска по ул. Привокзальной, 11

Схема расположения земельного участка в Исакогорском территориальном округе г. Архангельска по ул. Привокзальной, 12

Схема расположения земельного участка в Исакогорском территориальном округе г. Архангельска по ул. Речников, 33, корп. 2

Схема расположения земельного участка в территориальном округе Майская горка г. Архангельска по ул. Лермонтова, 29

Схема расположения земельного участка в территориальном округе Майская горка г. Архангельска по ул. Лермонтова, 29, корп. 1

Схема расположения земельного участка в Октябрьском территориальном округе г. Архангельска по ул. Свободы, 57, корп. 1

Схема расположения земельного участка в Октябрьском территориальном округе г. Архангельска по ул. Карла Маркса, 42

Схема расположения земельного участка в Октябрьском территориальном округе г. Архангельска по проспекту Ломоносова, 172, корп. 3

Заключение

Комиссия по землепользованию и застройке городского округа "Город Архангельск" извещает о начале проведения общественных обсуждений схем расположения земельных участков, расположенных:

в Маймаксанском территориальном округе г. Архангельска по ул. Гидролизной, 19;

в Маймаксанском территориальном округе г. Архангельска по ул. Гидролизной, 16;

в Соломбальском территориальном округе г. Архангельска по ул. Гвардейской, 13;

в Исакогорском территориальном округе г. Архангельска по ул. Железнодорожной, 10;

в Исакогорском территориальном округе г. Архангельска по ул. Железнодорожной, 4.

Общественные обсуждения проводятся с 22 февраля 2024 года по 13 марта 2024 года.

Текст оповещения

Форма подачи предложений и (или) замечаний по проекту

Схема расположения земельного участка в Маймаксанском территориальном округе г. Архангельска по ул. Гидролизной, 19

Схема расположения земельного участка в Маймаксанском территориальном округе г. Архангельска по ул. Гидролизной, 16

Схема расположения земельного участка в Соломбальском территориальном округе г. Архангельска по ул. Гвардейской, 13

Схема расположения земельного участка в Исакогорском территориальном округе г. Архангельска по ул. Железнодорожной, 10

Схема расположения земельного участка в Исакогорском территориальном округе г. Архангельска по ул. Железнодорожной, 4

Заключение

Комиссия по землепользованию и застройке городского округа "Город Архангельск" извещает о начале проведения общественных обсуждений схем расположения земельных участков, расположенных:

в Соломбальском территориальном округе г. Архангельска по ул. Мещерского, 2;

в Маймаксанском территориальном округе г. Архангельска по ул. Победы, 12, корп. 2;

в Маймаксанском территориальном округе г. Архангельска по ул. Победы, 12, корп. 3;

в Маймаксанском территориальном округе г. Архангельска по ул. Победы, 18;

в Северном территориальном округе г. Архангельска по ул. Добролюбова, 28;

в Северном территориальном округе г. Архангельска по ул. Добролюбова, 30;

в Исакогорском территориальном округе г. Архангельска по ул. Локомотивной, 33;

в Исакогорском территориальном округе г. Архангельска по ул. Локомотивной, 35;

в Исакогорском территориальном округе г. Архангельска по ул. Локомотивной, 37;

в Исакогорском территориальном округе г. Архангельска по ул. Локомотивной, 40;

в Исакогорском территориальном округе г. Архангельска по ул. Локомотивной, 42;

в Исакогорском территориальном округе г. Архангельска по ул. Клепача, 5.

Общественные обсуждения проводятся с 8 мая 2024 года по 15 мая 2024 года.

Текст оповещения

Форма подачи предложений и (или) замечаний по проекту

Схема расположения земельного участка в Соломбальском территориальном округе г. Архангельска по ул. Мещерского, 2

Схема расположения земельного участка в Маймаксанском территориальном округе г. Архангельска по ул. Победы, 12, корп. 2

Схема расположения земельного участка в Маймаксанском территориальном округе г. Архангельска по ул. Победы, 12, корп. 3

Схема расположения земельного участка в Маймаксанском территориальном округе г. Архангельска по ул. Победы, 18

Схема расположения земельного участка в Северном территориальном округе г. Архангельска по ул. Добролюбова, 28

Схема расположения земельного участка в Северном территориальном округе г. Архангельска по ул. Добролюбова, 30

Схема расположения земельного участка в Исакогорском территориальном округе г. Архангельска по ул. Локомотивной, 33

Схема расположения земельного участка в Исакогорском территориальном округе г. Архангельска по ул. Локомотивной, 35

Схема расположения земельного участка в Исакогорском территориальном округе г. Архангельска по ул. Локомотивной, 37

Схема расположения земельного участка в Исакогорском территориальном округе г. Архангельска по ул. Локомотивной, 40

Схема расположения земельного участка в Исакогорском территориальном округе г. Архангельска по ул. Локомотивной, 42

Схема расположения земельного участка в Исакогорском территориальном округе г. Архангельска по ул. Клепача, 5

Комиссия по землепользованию и застройке городского округа "Город Архангельск" извещает о начале проведения общественных обсуждений схем расположения земельных участков, расположенных:

в территориальном округе Варавино-Фактория г. Архангельска по ул. Красносельской, 16;

в территориальном округе Варавино-Фактория г. Архангельска по ул. Октябрьской, 33, корп. 1;

в территориальном округе Варавино-Фактория г. Архангельска по ул. Дачной, 64;

в территориальном округе Майская горка г. Архангельска по ул. Дружбы, 22;

в территориальном округе Майская горка г. Архангельска по ул. Дружбы, 35;

в территориальном округе Майская горка г. Архангельска по ул. Машиностроителей, 4;

в Маймаксанском территориальном округе г. Архангельска по ул. Мудьюгской, 23;

в Исакогорском территориальном округе г. Архангельска по ул. Вычегодской, 23;

в Исакогорском территориальном округе г. Архангельска по ул. Тяговой, 3;

в Цигломенском территориальном округе г. Архангельска по пер. Одиннадцатому, 1;

в Цигломенском территориальном округе г. Архангельска по пер. Одиннадцатому, 9;

в Цигломенском территориальном округе г. Архангельска по ул. Цигломенской, 12;

в Соломбальском территориальном округе г. Архангельска по ул. Шилова, 31;

в Соломбальском территориальном округе г. Архангельска по пер. Широкому, 9;

в Соломбальском территориальном округе г. Архангельска по ул. Александра Петрова, 9;

в Соломбальском территориальном округе г. Архангельска по ул. Трамвайной, 7.

Общественные обсуждения проводятся с 2 августа 2024 года по 14 августа 2024 года.

Текст оповещения

Форма подачи предложений и (или) замечаний по проекту

Схема расположения земельного участка в территориальном округе Варавино-Фактория г. Архангельска по ул. Красносельской, 16

Схема расположения земельного участка в территориальном округе Варавино-Фактория г. Архангельска по ул. Октябрьской, 33, корп. 1

Схема расположения земельного участка в территориальном округе Варавино-Фактория г. Архангельска по ул. Дачной, 64

Схема расположения земельного участка в территориальном округе Майская горка г. Архангельска по ул. Дружбы, 22

Схема расположения земельного участка в территориальном округе Майская горка г. Архангельска по ул. Дружбы, 35

Схема расположения земельного участка в территориальном округе Майская горка г. Архангельска по ул. Машиностроителей, 4

Схема расположения земельного участка в Исакогорском территориальном округе г. Архангельска по ул. Вычегодской, 23

Схема расположения земельного участка в Исакогорском территориальном округе г. Архангельска по ул. Тяговой, 3

Схема расположения земельного участка в Цигломенском территориальном округе г. Архангельска по пер. Одиннадцатому, 1

Схема расположения земельного участка в Цигломенском территориальном округе г. Архангельска по пер. Одиннадцатому, 9

Схема расположения земельного участка в Цигломенском территориальном округе г. Архангельска по ул. Цигломенской, 12

Схема расположения земельного участка в Соломбальском территориальном округе г. Архангельска по ул. Шилова, 31

Схема расположения земельного участка в Соломбальском территориальном округе г. Архангельска по пер. Широкому, 9

Схема расположения земельного участка в Соломбальском территориальном округе г. Архангельска по ул. Александра Петрова, 9

Схема расположения земельного участка в Соломбальском территориальном округе г. Архангельска по ул. Трамвайной

Заключение

Комиссия по землепользованию и застройке городского округа "Город Архангельск" извещает о начале проведения общественных обсуждений схем расположения земельных участков, расположенных:

в территориальном округе Варавино-Фактория г. Архангельска по проспекту Ленинградскому, 336;

в Соломбальском территориальном округе г. Архангельска по ул. Краснофлотской, 45;

в территориальном округе Майская горка г. Архангельска по ул. Дружбы, 4;

в Маймаксанском территориальном округе г. Архангельска по ул. Капитана Хромцова, 1, корпус 1;

в Северном территориальном округе г. Архангельска по ул. Добролюбова, 16;

в Северном территориальном округе г. Архангельска по ул. Добролюбова, 18, корп.1;

в Северном территориальном округе г. Архангельска по ул. Добролюбова, 20;

в Северном территориальном округе г. Архангельска по ул. Ударников, 15;

в Северном территориальном округе г. Архангельска по ул. Ударников, 15, корп.1.

Текст оповещения

Форма подачи предложений и (или) замечаний по проекту

Схема расположения земельного участка в территориальном округе Варавино-Фактория г. Архангельска по проспекту Ленинградскому, 336;

Схема расположения земельного участка в Соломбальском территориальном округе г. Архангельска по ул. Краснофлотской, 45;

Схема расположения земельного участка в территориальном округе Майская горка г. Архангельска по ул. Дружбы, 4;

Схема расположения земельного участка в Маймаксанском территориальном округе г. Архангельска по ул. Капитана Хромцова, 1, корпус 1;

Схема расположения земельного участка в Северном территориальном округе г. Архангельска по ул. Добролюбова, 16;

Схема расположения земельного участка в Северном территориальном округе г. Архангельска по ул. Добролюбова, 18, корп.1;

Схема расположения земельного участка в Северном территориальном округе г. Архангельска по ул. Добролюбова, 20;

Схема расположения земельного участка в Северном территориальном округе г. Архангельска по ул. Ударников, 15;

Схема расположения земельного участка в Северном территориальном округе г. Архангельска по ул. Ударников, 15, корп.1.

Заключение

Комиссия по землепользованию и застройке городского округа "Город Архангельск" извещает о начале проведения общественных обсуждений схем расположения земельных участков, расположенных:

в Маймаксанском территориальном округе г. Архангельска по ул. Мудьюгской, 45;

в Маймаксанском территориальном округе г. Архангельска по ул. Мудьюгской, 4;

в Соломбальском территориальном округе г. Архангельска по ул. Трамвайной, 1.

Текст оповещения

Форма подачи предложений и (или) замечания по проекту

Схема расположения земельного участка в Маймаксанском территориальном округе г. Архангельска по ул. Мудьюгской, 45

Схема расположения земельного участка в Маймаксанском территориальном округе г. Архангельска по ул. Мудьюгской, 4

Схема расположения земельного участка в Соломбальском территориальном округе г. Архангельска, по ул. Трамвайной, 1

Заключение

Комиссия по землепользованию и застройке городского округа "Город Архангельск" извещает о начале проведения общественных обсуждений схем расположения земельных участков, расположенных:

в территориальном округе Варавино-Фактория г. Архангельска по ул. Почтовый тракт, 17;

в территориальном округе Майская горка г. Архангельска по ул. Дружбы, 12;

в пос. Турдеевск городского округа "Город Архангельск" по ул. Центральной, 20

Текст оповещения

Форма подачи предложений и (или) замечаний по проекту

Схема расположения земельного участка в территориальном округе Варавино-Фактория г. Архангельска по ул. Почтовый тракт, 17

Схема расположения земельного участка в территориальном округе Майская горка г. Архангельска по ул. Дружбы, 12

Схема расположения земельного участка в пос. Турдеевск городского округа "Город Архангельск" по ул. Центральной, 20

Заключение

Комиссия по землепользованию и застройке городского округа "Город Архангельск" извещает о начале проведения общественных обсуждений схемы расположения земельного участка, расположенного в Исакогорском территориальном округе г. Архангельска по ул. Речников, 33, корпус 4.

Текст оповещения

Форма подачи предложений и (или) замечаний по проекту

Схема расположения земельного участка

Заключение

Комиссия по землепользованию и застройке городского округа "Город Архангельск" извещает о начале проведения общественных обсуждений схемы расположения земельных участков, образуемых в результате раздела земельного участка с кадастровым номером 29:22:081609:10, расположенных в Исакогорском территориальном округе г. Архангельска по ул. Дорожников, дома 1, 2, 3, 4.

Текст оповещения

Форма подачи предложений и (или) замечаний по проекту

Схема расположения земельных участков

Заключение

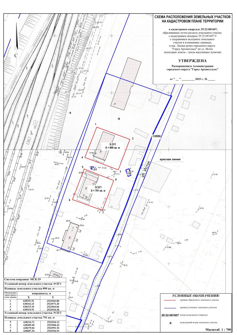
Комиссия по землепользованию и застройке городского округа "Город Архангельск" извещает о начале проведения общественных обсуждений схем расположения земельных участков, расположенных:

в Цигломенском территориальном округе г. Архангельска по ул. Зеленец, 32;

в Соломбальском территориальном округе г. Архангельска по ул. Баумана, 20;

в территориальном округе Варавино-Фактория г. Архангельска по проспекту Ленинградскому, 383;

в пос. Турдеевск городского округа "Город Архангельск" по ул. Турдеевской, 9;

в Октябрьском территориальном округе г. Архангельска по ул. Гагарина, 8;

в территориальном округе Майская горка г. Архангельска по ул. Лермонтова, 17;

в пос. Лесная речка городского округа "Город Архангельск" по ул. Исток, 15

в пос. Лесная речка городского округа "Город Архангельск" по ул. Исток, 16;

в Исакогорском территориальном округе г. Архангельска по ул. Тяговой, 36.

Текст оповещения

Форма подачи предложений и (или) замечаний по проекту

Схема расположения земельного участка в Цигломенском территориальном округе г. Архангельска по ул. Зеленец, 32

Схема расположения земельного участка в Соломбальском территориальном округе г. Архангельска по ул. Баумана, 20

Схема расположения земельного участка в территориальном округе Варавино-Фактория г. Архангельска по проспекту Ленинградскому, 383

Схема расположения земельного участка в пос. Турдеевск городского округа "Город Архангельск" по ул. Турдеевской, 9

Схема расположения земельного участка в Октябрьском территориальном округе г. Архангельска по ул. Гагарина, 8

Схема расположения земельного участка в территориальном округе Майская горка г. Архангельска по ул. Лермонтова, 17

Схема расположения земельного участка в пос. Лесная речка городского округа "Город Архангельск" по ул. Исток, 15

Схема расположения земельного участка в пос. Лесная речка городского округа "Город Архангельск" по ул. Исток, 16

Схема расположения земельного участка в Исакогорском территориальном округе г. Архангельска по ул. Тяговой, 36

Заключение



Скоро что то будет...
Оцените полезность информации:
Дата публикации документа: 25.10.2022 09:56:33
Последнее изменение: 14.11.2025 12:59:14

Решаем вместе
Не убран мусор, яма на дороге, не горит фонарь? Столкнулись с проблемой — сообщите о ней!